您当前所在位置: 首页 > 重点领域信息公开 > 自然资源领域 > 国土空间规划编制 > 城市、镇详细规划 > 批前公示
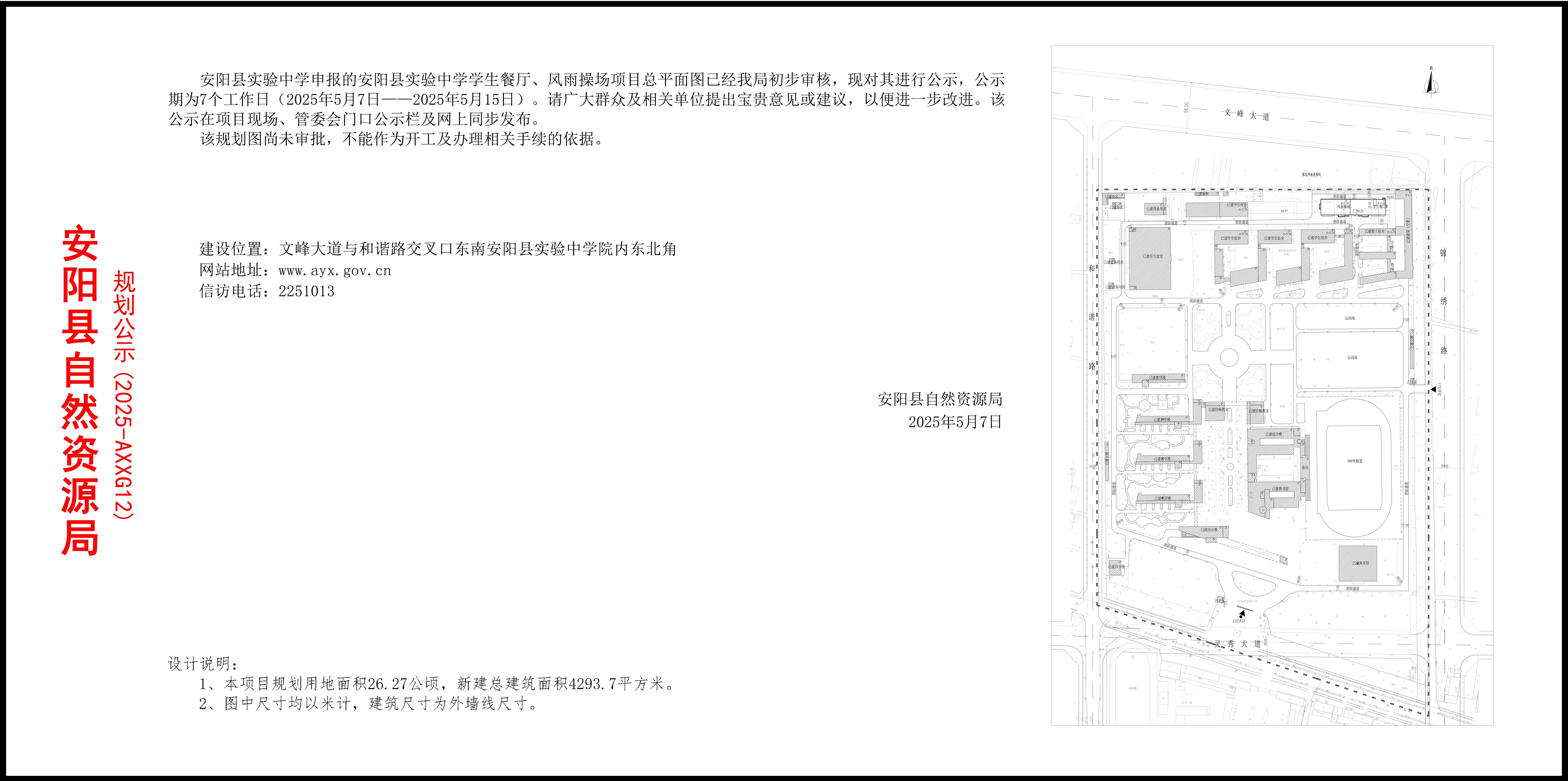
安阳县实验中学学生餐厅、风雨操场项目总平面图公示
安阳县实验中学学生餐厅、风雨操场项目.jpg
繁 / 简
关 闭